El Ayuntamiento de Lucena ha adjudicado las obras de construcción del nuevo bar-cafetería de la Ciudad Deportiva. El proyecto, presentado el pasado mes de agosto, tiene el objetivo de crear una infraestructura que refuerce la oferta de servicios en este complejo municipal para responder a las necesidades detectadas entre sus más de 593.000 usuarios/visitantes anuales.
Tras su segunda salida a licitación el mes pasado por un presupuesto base de 90.120 euros (IVA incluido) conforme al expediente publicado en la Plataforma de Contratación del Sector Público, el proyecto ha recibido un total de tres ofertas, resultando seleccionada la presentada por Grupo Agroparefema S.L., con un importe final de 83.813 euros.

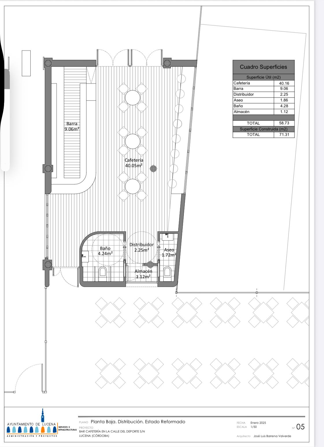
El nuevo espacio se ubicará en la entrada principal de la Ciudad Deportiva y contará con 80 metros cuadrados de superficie interior, con capacidad para cinco mesas y hasta veinte comensales, además de una terraza exterior con 12 mesas y capacidad para 48 personas. La actuación incluye criterios de accesibilidad universal, sistemas de eficiencia energética, iluminación LED y aislamiento sostenible, alineándose con los estándares de mejora previstos para este complejo deportivo municipal.
Desde el Ayuntamiento de Lucena se prevé la formalización del contrato en los próximos días, lo que permitirá iniciar las obras conforme al plazo de ejecución establecido en el expediente.